Komplett-Speicherofen New Teredo - L152.5/B91/H122 cm

8’025.00 CHF / Stk.
exkl. 8.1% MwSt.
Lager:
Art. Nr: KOS1061
Gewicht: 1392 kg / Stk.
Anzahl Stk.

Beschreibung

Innenausbau:
Feuerraum Typ D plus, Nachheizflächen

aus Modulzugsteinen, inkl. Putzöffnungen

Mantel:
Mantel gemauert, Putz, inkl. Russöffungen

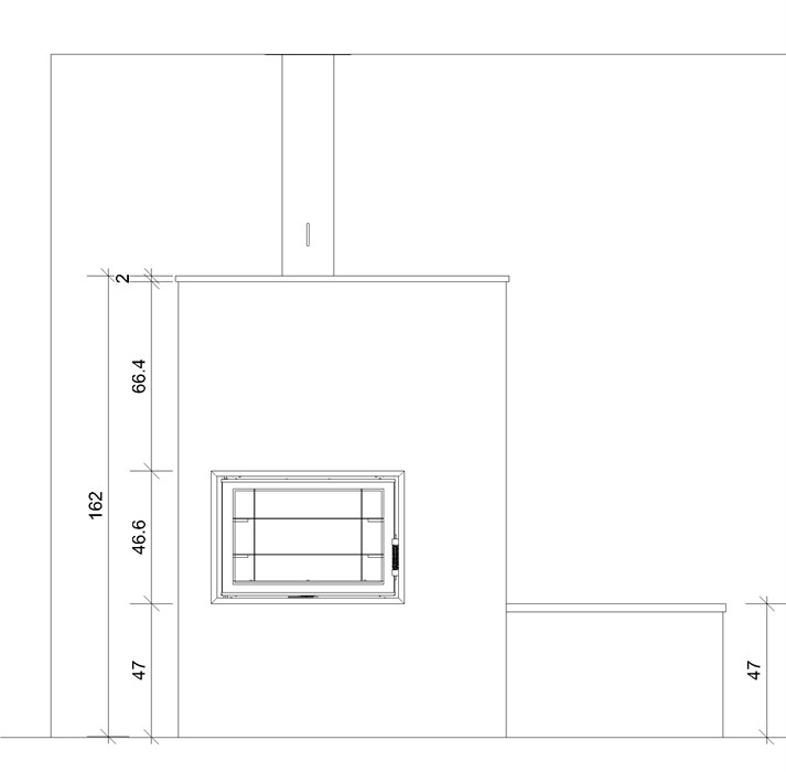
Aussenmasse:
B 191 x T 75 x H 162 cm

Brandschutz:
gem.Leistungserklärung / STP

LRV:
LRV konform nach EN15250

Leistung:
5 kW
(Feuerungswärmeleistung 17 kW)

VL-Anschluss:
Dm 150 mm (an Aussenluftanschlusssockel)

Kaminabgang:
Dm 180 mm (Gussanschlussstutzen)

Lieferumfang:
Feuerraum Typ D plus mit GT-A07, Züge, VL-Klappe,
Putzträgerplatten für Mantel, Mörtel, Putzschienen, Grundputz,
Fertigputz 0.5 mm, Armierungsgewebe Isolmos für Unterbau,
Gussanschlussstutzen, Reinigungsöffnung, Aufbauanleitung

Nicht dabei:
Natursteinabdeckungen, Kaminanschluss,
Kaminklappe, Verbrennungsluftanschluss